Pearl

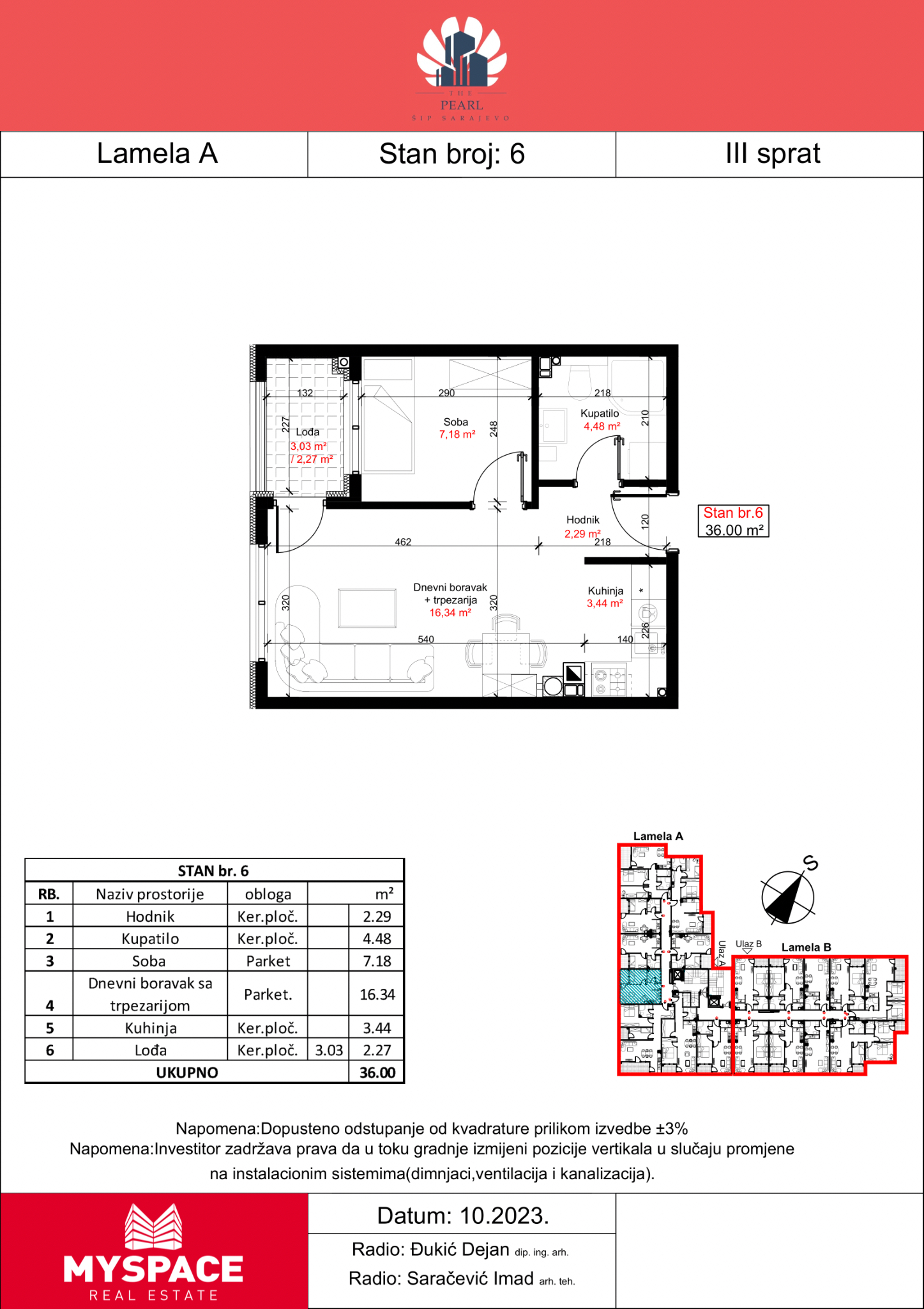
STAN S6 - III

KVADRATURA: 36,00

UREĐENJE: Dvosoban

OPREMLJENOST: Neopremljeno

PREUZMI PDF: OVDJE

Često postavljena pitanja

Stolarija obično biva postavljena prije nego se stanovi predaju stanarima kako bi se osigurala funkcionalnost i sigurnost.

Blizina javnog prijevoza može biti važna karakteristika nove zgrade, i mnoge su često smještene u blizini javnih prijevoznih sredstava.

Klima uređaji ili sustavi grijanja često su standardna oprema u modernim stanovima.

Sigurnosne mjere, kao što su video nadzor i sustavi zaštite, često su dio novih zgrada kako bi se osigurala sigurnost stanara.

Rezervišite pregled stana

bs_BABosnian